Vendita
Banditella alta villino unico livello con giardino
ARDEA (RM)
- ZONA Banditella
€ 175.000
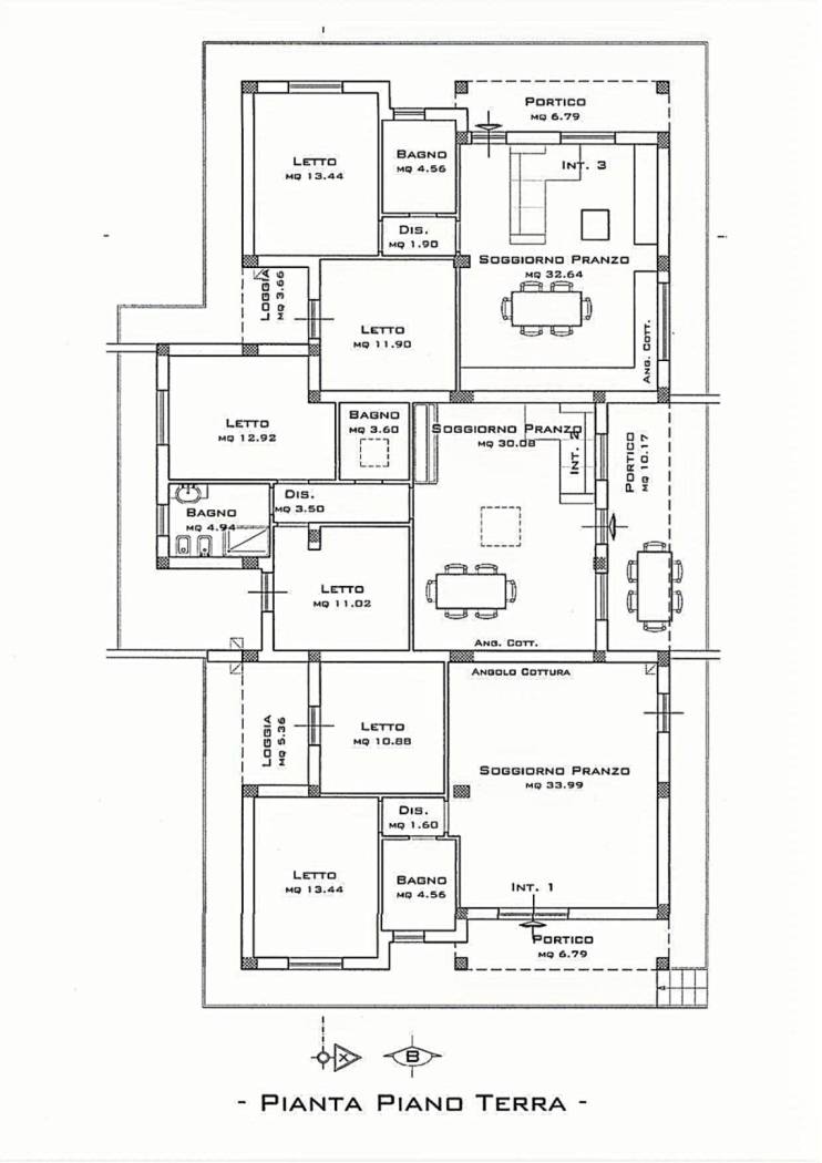
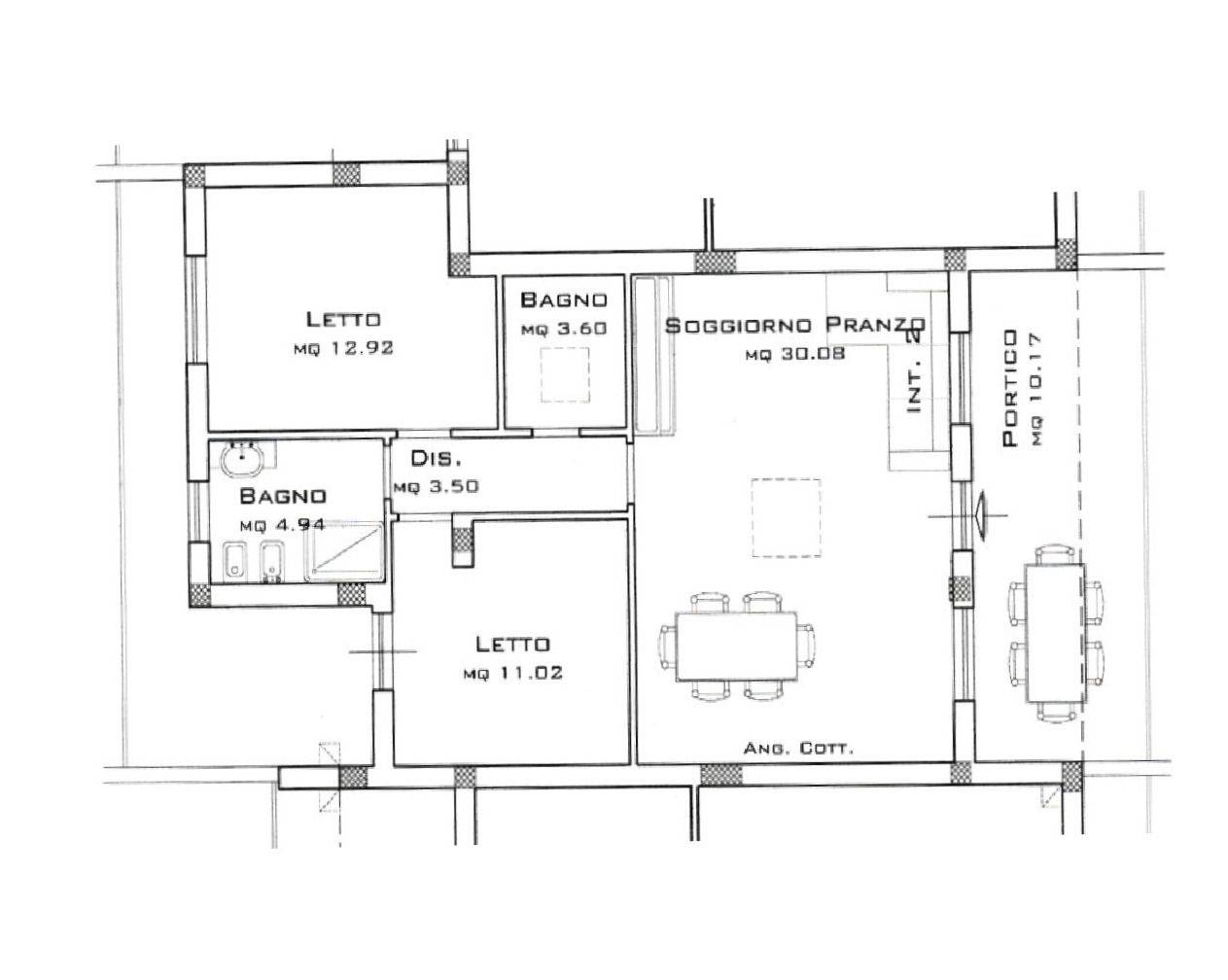
Ardea Banditella Alta adiacenze museo Manzù in Via delle Genziane proponiamo in vendita villini in trifamiliare su unico livello con ampi giardini. I lavori sono iniziati e la consegna è prevista per la primavera 2026, Saranno composti da un ampio salone di oltre mq. 30 con angolo cottura due ampie camere matrimoniali, due bagni, per una superficie commerciale di 90 mq tutti accatastati come abitativi senza locali tecnici oltre ad un doppio portico e giardino con passo carrabile. Viste le dimensioni del salone e la doppia finestratura se necessita si puo' far ricavare dal costruttore all'interno dello stesso una ulteriore cameretta/studio .Tutti gli immobili verranno rifiniti con materiali di primissima scelta i pavimenti saranno in monocottura gli infissi in pvc con doppio vetro, grate e portoncino blindato, riscaldamento autonomo a pavimento con caldaia a condensazione o pompa di calore, pannello solare a produzione di acqua calda con serbatoio da 150 lt, pannello fotovoltaico da 1 Kw e predisposizione per l'istallazione dei climatizzatori e impianto di allarme, le unità immobiliari saranno allacciate a tutte le utenze comunali. Acquistando in corso di costruzione c'è la possibilità di personalizzare la pavimentazione ed i rivestimenti tra le campionature messe a disposizione della società costruttrice in alternativa si possono valutare anche pavimentazioni e rivestimenti fuori capitolato e come sopra riportato eventualmente far creare la terza stanza da letto. Tutti gli immobili rispecchieranno le ultime disposizioni costruttive in funzione della classe energetica la quale rientrerà nella classe A. Il costo della unità centrale e di Eu.. 175.000, 00 ed ha un giardino su due lati per una superficie di 100 mq, mentre le unita' angolari costano Eu.. 180.000, 00 ed hanno un giardino di circa 220 mq su tre lati.Per info e visite chiamare il 3391066227 oppure 3293210864
Contratto Vendita
Rif IMMO-123510929
Prezzo € 175.000
Provincia Roma
Comune Ardea
Zona Banditella
Indirizzo Via delle Genziane 38">
Vani 3
Camere 2
Bagni 2
Classe energetica
A2 (DL 90/2013)
EPgl,nren 175 kwh/m2 anno
Riscaldamento autonomo
Condizioni nuova costruzione
Anno di costruzione 2025
Cucina angolo cottura
Consistenze
| Descrizione | Superficie | Sup. comm. |
|---|---|---|
| Principali | ||
| Immobile - piano terra | 78 Mq | 78 Mqc |
| Giardino/Resede | 110 Mq | 11 Mqc |
| Totale | 89 Mqc | |



































Zoom della mappa
Apri con:
Apple Maps
Google Maps
Waze
Apri la mappa






